工作時間 周一至周六 8:00-17:00
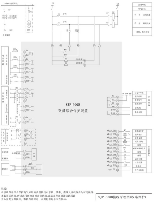
SJP-600B微機綜合保護裝置概述

SJP-600B微機綜合保護裝置參數


SJP-600B微機綜合保護裝置尺寸

礦山冶金
化工、化肥、水泥、紡織
能源、環(huán)保
機械電子
火電、水電
造紙、制糖、制藥
市政基礎建設
原料、鋼鐵

